Build your heavy-duty deck-over trailer with our 8’6” x 20′ Deck-Over Trailer Plans, engineered by Synthesis Engineering. Designed for rugged performance, this trailer offers a choice between 14,000 lbs or 16,000 lbs capacity, ensuring it meets your demanding hauling needs. The plans include detailed instructions and numerous configuration options for a perfect build.
A trailer parts kit for this 8’6” x 20′ Deck-Over Trailer will be available soon on our website. If you need the kit sooner, please contact us.
Specifications:
- Model: 8×20-160ds-dtrailer (Mdo820DS160)
- Bed Size: 8’6” x 20′ nominal (see specs tab for more information)
- Axle Type: Tandem axles with slipper style leaf springs
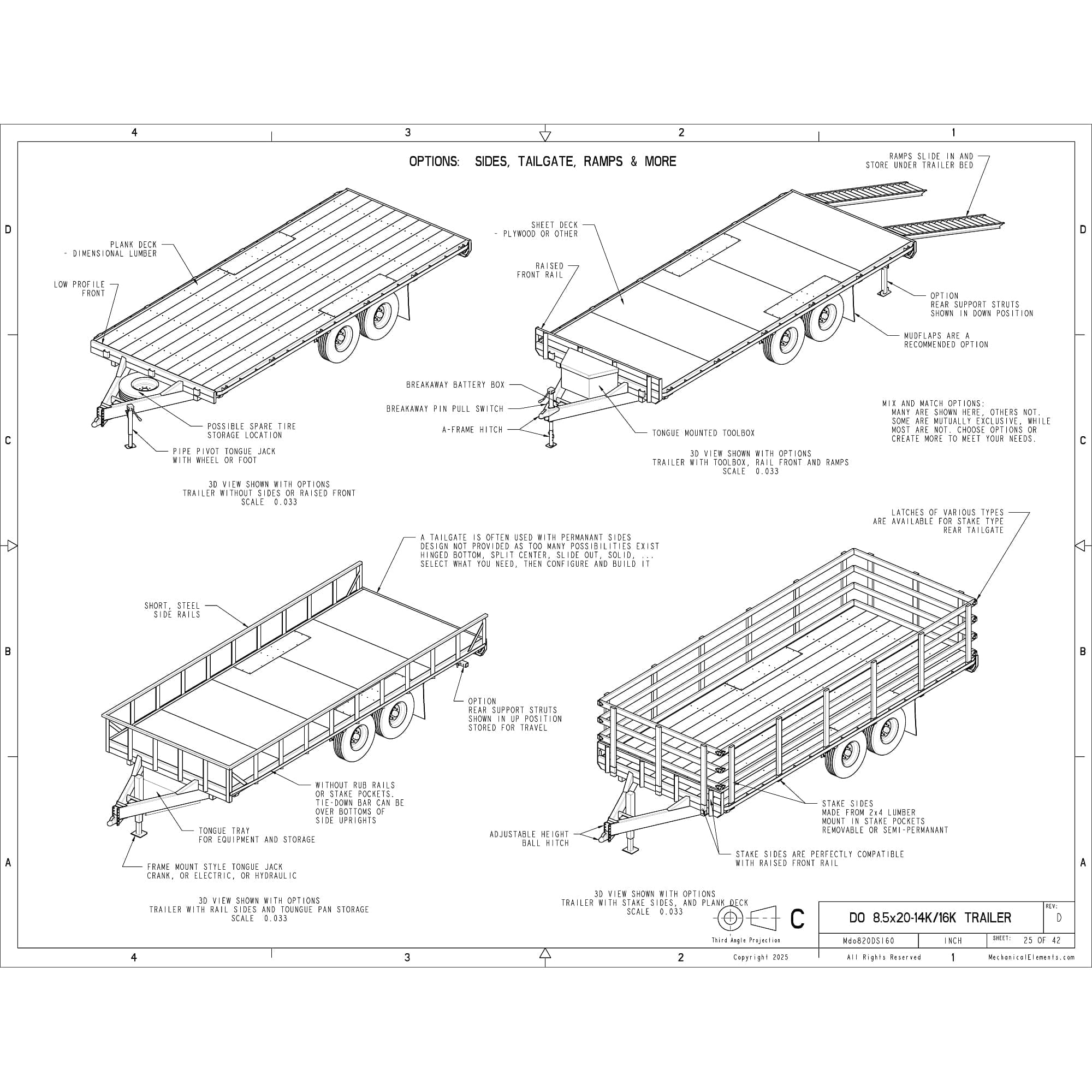
- Load Capacity: 14,000 lbs or 16,000 lbs total
- Frame Material: Welded steel with rectangular tube main beams
- Width at Fenders: 102″
- Trailer Weight: Approximately 3,000 lbs (without ramps, decking, or sides)
Design Features:
- Capacity Options: Choose between 14,000 lbs or 16,000 lbs full trailer capacity.
- Ramp Choices: Select from various ramp lengths and strengths to suit your needs.
- Customizable Deck and Sides: Build a flatbed or add sides, and choose your deck material and tie-down points as needed.
- Detailed Plans: Full set of drawings with illustrated step-by-step instructions.
- Robust Design: Engineered for maximum torsional stability with a welded steel frame using rectangular tubes, channels, angles, and flats.
Strength:
Our deck-over trailer plans prioritize strength and durability with a robust welded steel frame. Engineered by Synthesis Engineering, these plans ensure the trailer can handle heavy loads and withstand rigorous use, making it ideal for both everyday tasks and more demanding transport needs.
Customization:
Customize the trailer to your specific requirements. Our plans provide guidance on adjusting the capacity, deck size, ramp options, and additional features like sides or tie-down points. The flexibility in design allows you to create a trailer that perfectly suits your needs.
Delivery:
- PDF Download: Instantly download the 8’6” x 20′ Deck-Over Trailer Plans in PDF format, printable in various sizes, or viewable on your device. Orders can be downloaded immediately after purchase from our website or confirmation email.
- For convenient download, the Trailer Plans are provided in a .ZIP file. If needed, you can get a free PDF reader from Adobe.com and a free ZIP utility from WinZip.com.
- Paper Copy: Receive the drawings printed on 11″ x 17″ paper and the construction instructions on 8.5″ x 11″ paper, all with free shipping.
Support:
If you accidentally delete your file, contact us for assistance. Our team is available to help you safely modify your trailer and provide guidance to ensure your build is successful.









